
【南江壹號】300㎡輕奢大平層,精致格調,掌控全場!


而在這些細微的瑣碎中
我們大概總能捕捉到一些輕盈的喜悅
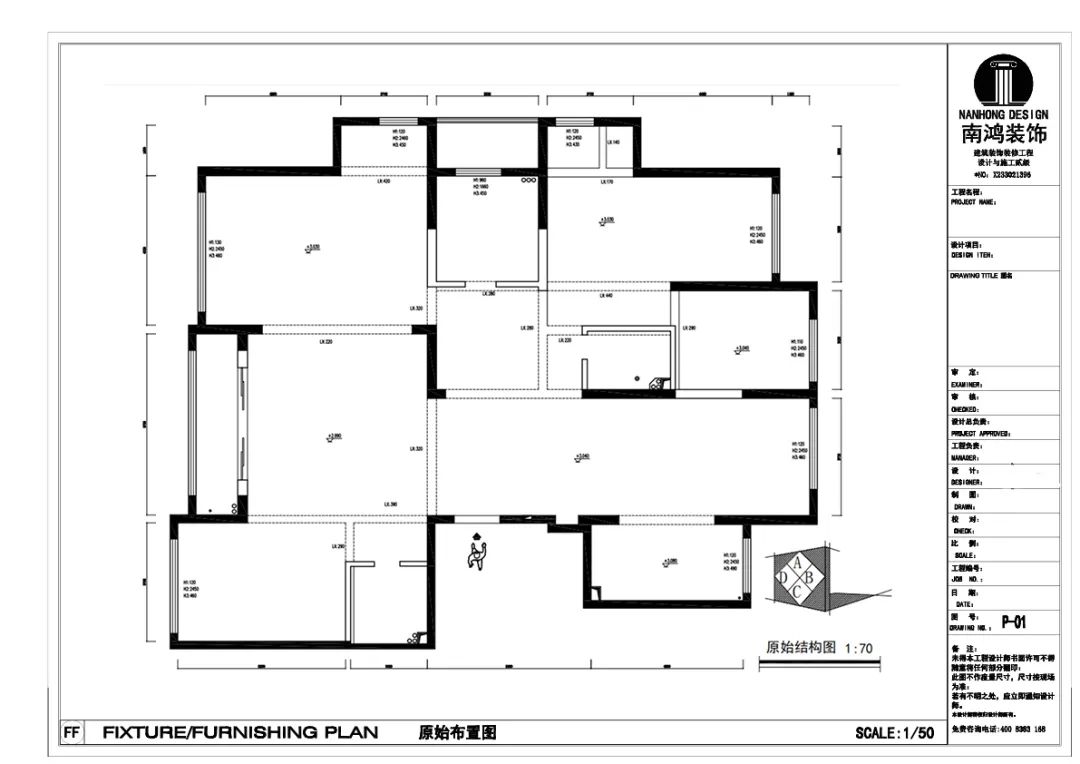
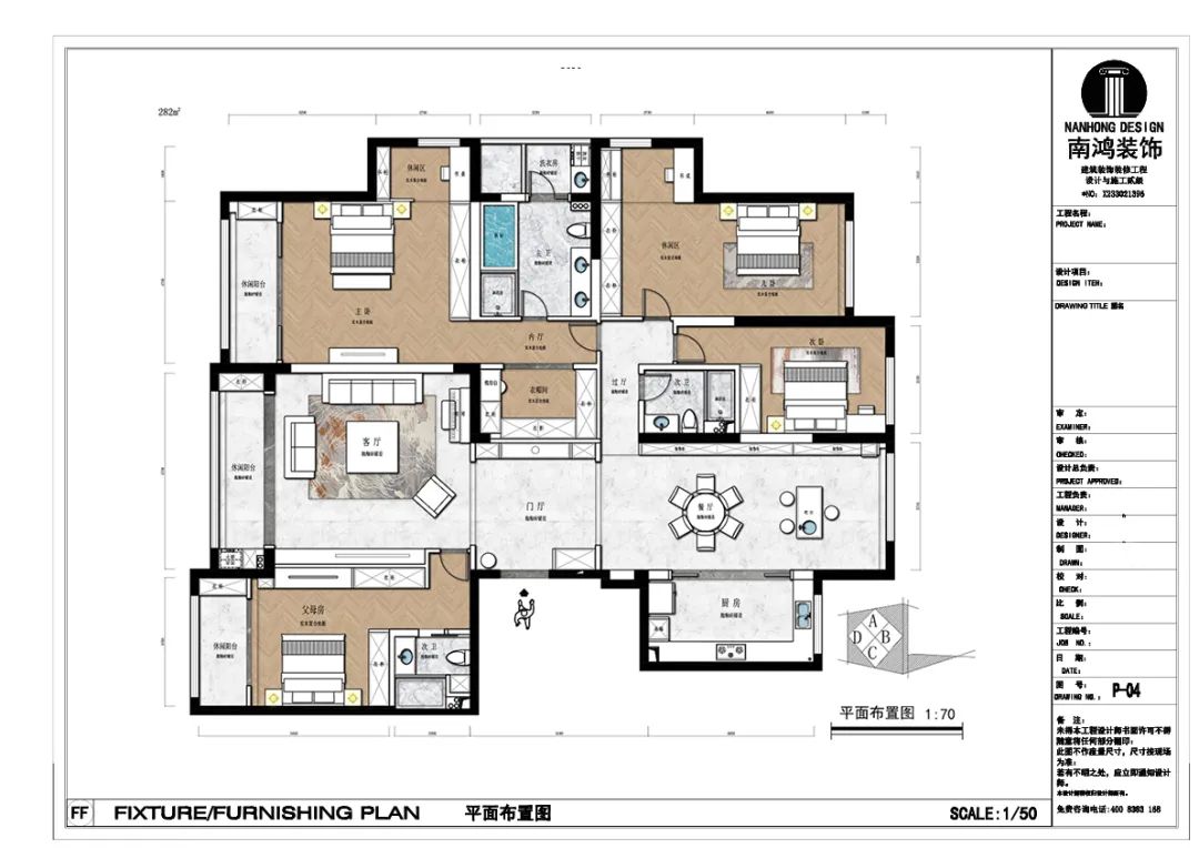
||| 項目信息 地址:南江壹號 城市:中國 杭州 戶型:四室兩廳 面積:300㎡ 風格:現代輕奢 設計施工:浙江南鴻裝飾 本案為300方現代輕奢風格大平層。戶型比較方正,在功能區域劃分上設計師并沒有做太多改動。居室內部采光充沛、開闊明朗,石材與原木為主體結合,形成空間的冷暖平衡。 除了打造居室整體的輕奢外形,我們也同樣關注著各種內飾細節的連續性和自然感,以讓空間結構更加完善,看起來更加統一。 居室整體以銀梨木色為主,高級灰為輔,加一些明亮跳色的點綴,作為承載老中青三代人同堂生活的空間,我們遵循多元化的場景設計法則,讓每個居室成員都能找到專屬于自己的生活場域。 ▲原始戶型圖 ▲平面設計圖 玄關 - Hallway 入戶門廳是一個非常方正規矩的空間,端景以多種材質組成顯示層次,墻頂燈光烘托氛圍,兩側溫暖的木作好像謙卑的侍者,靜靜等候主人每日的歸家時刻。 客廳 - Living Room 客廳以規整有序的外觀架構和精細調配的材質比例展現理性的輕奢格調與高雅的審美體驗。陽臺包進室內使用,讓光線自由流動,成為空間天然的配飾。 兩側背景墻裝飾結合石材、硬包和木格柵,視覺豐富也不會顯得過度飽滿,無主燈設計輔助空間成境。鮮亮的Poliform螃蟹椅成為平衡空間的妙品,讓格調在細節間流露。 餐廳 - Dining Room 餐廳同樣有著開闊的視野,與廚房用黑框的玻璃門相隔,將中餐爆炒的油煙阻隔在內。餐桌的圍合用餐形式有助于增強家人間的情感聯系,而強大的儲物系統也最大限度保證了公區域的視覺整潔。 酒水杯盞等可以有序地存放在玻璃柜內,將氣度、排場精致收斂。餐廳空間富足,所以我們額外設置了一個黑色的休閑水吧臺,回字形動線讓區域通達便捷,料理時還可順勢擴展成西廚操作臺。 臥室 - Bedroom 主臥以低飽和度色彩和溫潤的木材勾勒日常安睡的場景,搭配柔和燈光營造舒緩的身心庇護所,呈現主人從容不迫的生活態度。 兒臥走清爽的藍色系,背景做了簡約的弧形造型,更顯活力。 衛生間 - Bathroom 浴缸、淋浴房、洗衣房、雙臺盆...衛生間擁有非常完善的功能,寬裕的尺度帶來最大化的家庭舒適體驗。























上一篇:可惡,又被嵌入式設計裝到了
下一篇:小而美的家居設計,它排第一?
免費
免費申請戶型規劃
專屬設計師免費1對1全程服務
已經有3772人申請
24小時免費咨詢電話
400-8800-618
你家預算
108080元