
210㎡現代輕奢 | 利落且溫柔,恬淡而安適

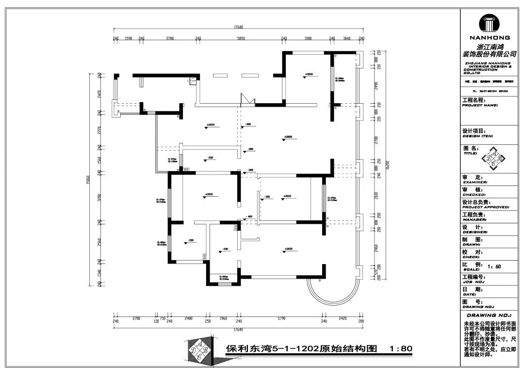
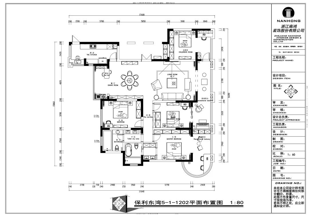
地址:保利東灣 城市:中國 杭州 戶型:四室兩廳 面積:210㎡ 風格:現代輕奢 設計施工:浙江南鴻裝飾 人文與自然,給予設計以無限的靈感,幫助洞察生活本質,建構詩意的理想。 設計就是要去挖掘居住者自身的存在方式,并創造出由內而外可感知到的隨心與安適。 空間使用素凈的底色,筆直利落的線條構建秩序,加上適當的留白,與格柵和金屬元素的點綴,虛實之間,設計的高級質感躍然而出,并將居住引向契合心靈的最優狀態。 #戶型改造分析 ▲原始戶型圖 一線江景房,南面房間有很多陽臺和露臺可以澆筑出來,全部臨江,景色優美,并且大多數房間都是朝南,采光好。但是有一個衛生間占用了餐廳的位置,導致餐廳空間太小。 ▲平面設計圖 設計改動:拆除原本在餐廳的衛生間,擴大餐廳面積;在原來公衛的基礎上做了雙臺盆的干區,擴大公衛的面積和使用效率;主臥衣柜做到床尾,整面墻的收納充分滿足了業主對于儲物的需求。 空間整體是低調的白、灰色,再加一些米色棕色的點綴,清淺中附著出家的溫情。頂面和墻面都有做金屬線條,可以起到視覺拉伸和裝飾的雙重作用。公區域開敞,明亮的光線放大南北通透的空間感。 空間的陳設藝術往往具有著點石成金的神奇魔法。錯落有致的格柵布局,分布在墻上,軟裝上,拉伸視覺的縱深感。橙色抱枕做活潑的跳色,皮藝沙發定位出輕奢格調,喚醒家的感官體驗。 看得見的材質調度,看不見的工藝細節,只以匠心寫入,靜待俗塵生花,照見明媚。 一日三餐雖是簡單的事,對每一個普通家庭來說卻都有著重大的意義。餐廳空間是享食之地,也是家人日常交流情感的場所,杯盞碗碟之間,藏著最樸實的人間親情。 優雅的藝術擺件與掛飾為餐廳營造恰當的氛圍和儀式感,整面到頂的木作儲物柜,及時解決餐廚的收納需求。靠近陽臺處做了小吧臺,添加更多靈活的休閑空間。 廚房將零食柜藏進白色高柜中,保持視覺的干凈整潔。櫥柜上淺下深形成簡單的層次,蒸烤箱等廚電都做了內嵌,讓空間得到高效利用。 主臥的設計與主人的身份完美適配,米色的床品,優雅大方的背景裝飾,既溫柔又精致。陽臺提供觀景場所,美麗的湖光山色,讓彌足珍貴的休憩時光得到超然于物質的升華。 男孩房的背景上我們用了一些繽紛氣球點綴,來創造更有童趣感的臥室氛圍。 顏色可以代表情緒,顯示冷暖,甚至能做到“一眼顯貴”,長輩房使用的愛馬仕橙正是這樣一種易展貴氣的顏色,優雅時尚,兼顧活力與大方的個性。 衛浴空間墻地面使用啞光質感的灰色瓷磚,增強統一性,也方便打理。極致的純粹感受,足以窺見主人對于高品質生活的追求。






















下一篇:可惡,又被嵌入式設計裝到了
免費
免費申請戶型規劃
專屬設計師免費1對1全程服務
已經有3772人申請
24小時免費咨詢電話
400-8800-618
你家預算
108080元