
稽山一品 | 禪意新中式,凝練非凡氣度

我發現在樸素的生活中,
反而有強大的力量。
/ 三宅一生
與傳統中式相比,新中式風格更為清新明快,以追求意境為主,通過留白手法和中式元素的點綴,來營造一個靜謐安適的空間。

項目是400方的別墅大宅設計,居住人口雜,老中青三代,各個年齡段的審美和生活需求都不盡相同,如何讓空間更具包容性,設計師也交出了自己的答卷。

本案依主人的喜好選擇了禪意新中式風格,淺色的木頭和米灰的硬包塑造大氣穩重的氛圍感受,不浮不躁,幽雅寧靜,營造出家的歸屬感。與此同時又將各個小空間視為獨立的風景,通過細節的變化,來平衡不同主體的需求。
01.
玄關
Hallway

玄關,端景臺搭配彩銅擺件和山水意境畫,設計師以凝練的筆法書寫出了這個家的序章。
02.
客廳
Living Room


客廳布局對稱和諧,陳設古樸雅致,將中國的傳統文化和現代生活方式結合,為空間注入了全新的時代氣息,毫無疑問,這是專屬于我們東方的一種生活態度,一種設計美學。


素雅的色調,溫潤的胡桃木材質和簡練的線條,交融在一起,造就空間的均衡秩序。這種清晰、明亮的結構,帶來恒久的美,雖不刻意張揚,卻難掩其中的氣質與內涵。
03.
餐廳
Dining Room


餐廳同樣是以格柵隔開的獨立區域。自然的紋理、材質融入空間,使之變得更加休閑舒適。山水畫將古韻延續到餐廳,中式器具擺件點綴在其中,古色古香,風雅自來。
04.
廚房
Kitchen

居家生活的溫情正在一食一飯中彰顯,作為誕生美食的主場,廚房十分寬敞大氣,U型的操作臺,吊柜設計,足以應對各種大大小小的聚餐場面。
05.
臥室
Bedroom


臥室沒有任何繁復的裝飾,通過適當留白的手法演繹當代中式設計的動人風采。藝術硬包的抽象筆法與多彩,讓空間在寧靜之外還平添了靈動和秀氣。



中式傳統風韻與現代舒適感完美結合,優雅高超的格調盡顯主人不凡的生活品位。


這間臥房則更顯素樸,簡單利落的線條和板塊勾勒層次,沉穩色調創造安靜柔和的睡眠氛圍。


兒童房的色彩活潑、鮮亮,符合孩子好玩愛動的天性。軟裝的材質面料溫和舒適,營造干凈、舒心的居室感受。
06.
書房
Study


書房,室內光線充沛,靜坐于此,練字品茶,人文情懷和意韻風骨徐徐延展,最終凝練成目之所及的非凡氣度。
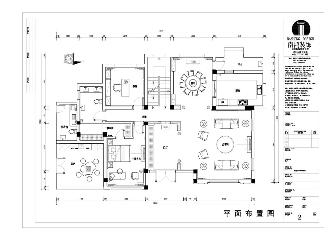
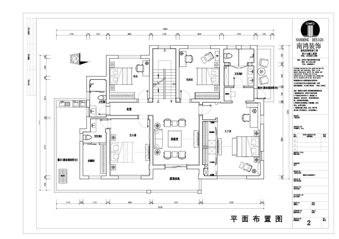
平面戶型圖


--
·項目信息·
項目名稱:稽山一品
建筑類型:別墅
設計風格:新中式
項目地點:中國·杭州
項目面積:400㎡
項目服務:設計·施工·硬裝·軟裝 全案設計
設計單位:浙江南鴻裝飾
施工單位:浙江南鴻裝飾
下一篇:地臺床的快樂,你根本想象不到!
免費
免費申請戶型規劃
專屬設計師免費1對1全程服務
已經有3772人申請
24小時免費咨詢電話
400-8800-618
你家預算
108080元