
【協安紫郡】低彩度+超強收納,打造寬敞明凈的宜居之所!
項目信息
PROJECT INFORMATION
地址/ 協安紫郡
城市/ 中國 杭州
戶型/ 三室兩廳
面積/ 151㎡
風格/ 現代
設計施工/ 浙江南鴻裝飾
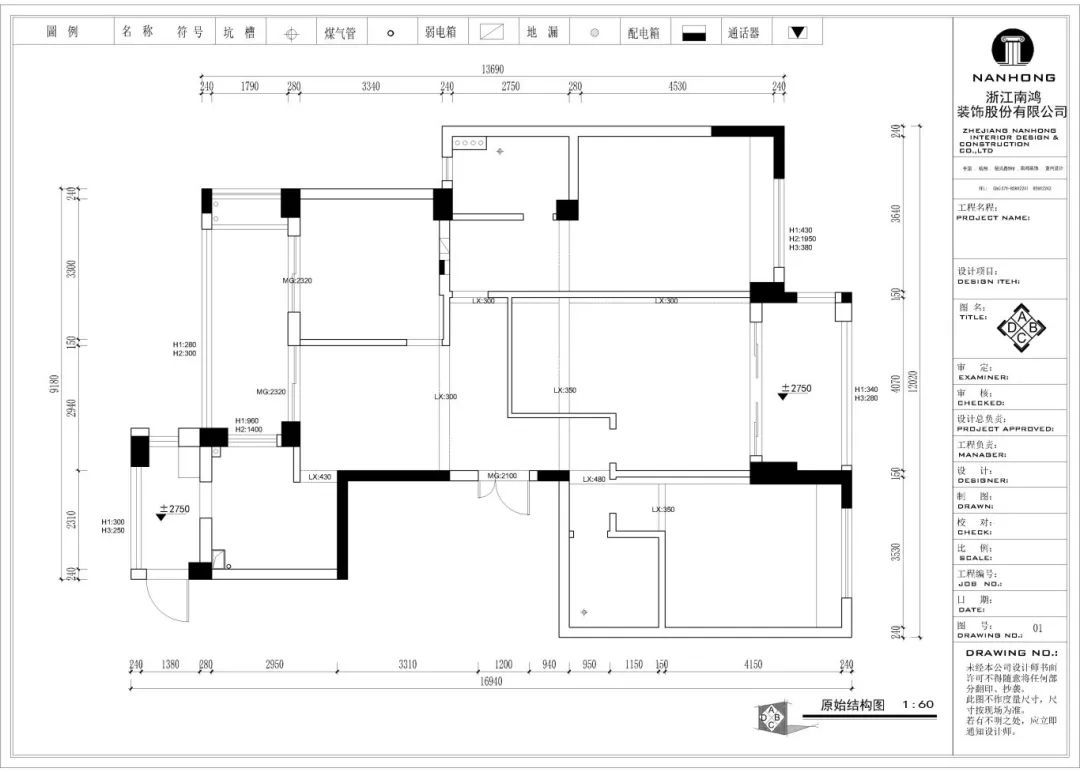
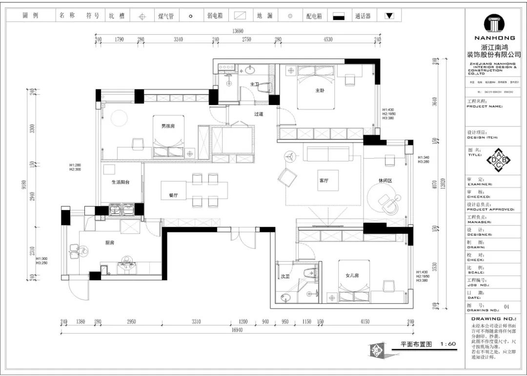
作品前言. ABOUT HOME 本案為一家四口居住設計,主體思路是調整動線,使居室視野能夠更加開闊。設計師改善了原先戶型格局分散、動線復雜的狀態,讓家的輪廓復現清晰,流暢串起一家人的日常之景。色調上則盡量降彩度,以黑白灰為主,兩間兒童房用一些木色、粉色進行提亮,以更符合孩童的天性。 戶型設計. LAYOUT DESIGN 原始結構 平面方案 實景呈現. CASE APPRECIATION No.1 客廳 空間以簡潔有序的白色立面打造,顯出純凈無暇的通透底質。簡單的線面構塑讓家的氛圍格外輕松悠閑,深灰色意式家具的選用則讓空間衍生穩重踏實的一面。 客廳包進陽臺并做地臺打造為休閑區和書房使用,無形的區域劃分讓空間隔而未隔,視野流暢無阻,光感愈加充沛。 地臺區局部深色背景搭配懸浮式書桌,香格里拉簾過濾光線,一本書一杯咖啡,度過寧靜愉快的晌午。對側置入開放格收納區,放取物件只需一個小小的轉身,輕松閑適。 No.2 餐廳 餐廳擁有清晰的功能劃分以及整潔有序的塊面,左右兩側并立著整面收納柜拓增儲物機能,黑白純粹的兩色營造反差層次。 客餐之間無拘開放式樣態,加之簡潔的用色,讓家的視野格外明凈而開闊。巖板材質島臺與餐桌組合,打造功能性、互動性極強的生活情景。 整體回字形動線讓餐食空間的行動路徑通達又便捷。島臺配備儲物柜和插座,充當日常一塊極方便的備餐區,增強使用頻率,搭配體態輕盈的餐桌椅以及流暢整齊的餐邊柜,輕松化身全屋顏值擔當。 No.3 廚房 中廚區金屬烤漆質感的櫥柜與餐廳之景無形串聯,空間內外統一,獨特的光澤閃耀于每一寸間。洗菜、切菜、烹飪區沿墻呈U型布局,寬裕的尺度包容完整的下廚及收納體驗。 No.4 主臥 主臥鋪敘簡潔的銀灰色,呈現出明亮空間感,半墻設計在簡約之中制造層次,不落地式床頭柜和桌臺則更顯輕盈有型。 No.5 兒童房 兒童房使用了溫潤的原木色以及活潑的跳色來增添少兒專屬的童趣氛圍,讓空間氣質相隨使用者轉變,也是設計人性化的一大考量。


















免費
免費申請戶型規劃
專屬設計師免費1對1全程服務
已經有3772人申請
24小時免費咨詢電話
400-8800-618
你家預算
108080元